5 просмотров

Центр Города, парковка, возможна перепланировка, свободное назначение, 375 м²

Город: Казань г.
Код:
KA6202
Тип:
Помещение свободного назначения
Возможное назначение:
Общепит, Офис, Помещение свободного назначения, Торговая площадь
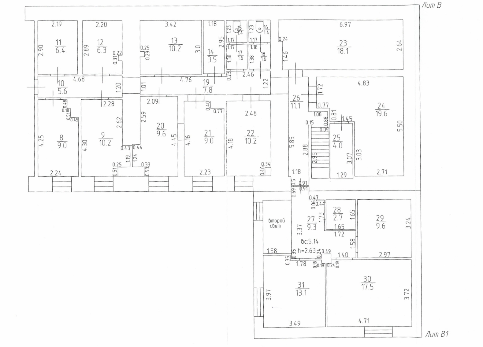
Площадь:
375 м2
Этажность:
3
Высота потолков:
4 м
Состояние:
Типовой ремонт
Вход:
Отдельный с улицы
Тип здания:
Объект свободного назначения
Парковка:
Наземная
10 мест
Метро:
Площадь Тукая
450 000 руб.
(1 200 руб. за м2)

Предложение от Собственника!

Помещение находиться в историческом центре города, рядом ул. Баумана. Есть парковка. Можно сделать перепланировку. Все обсуждаемо.

Отлично подойдет под хостел, офис, мед центр, компьютерный клуб.

— Электричество — 20 кВт, можно обсудить увеличение.

— 1я линия

— Отопление

— Охрана

— Интернет

— 4 Мокрые точки, 3 Санузла. Можно увеличить кол-во

— Запасной вход

— Доступ 24 часа

— Есть возможность повесить вывеску

— Кондиционер

— Вентиляция, вытяжка.

— Имеется разгрузочно-погрузочная зона

Коммунальные платежи оплачиваются отдельно

Возле объекта имеется бесплатная парковка

Высота потолка – 4 м

Предложение от Собственника!

Помещение находиться в историческом центре города, рядом ул. Баумана. Есть парковка. Можно сделать перепланировку. Все обсуждаемо.

Отлично подойдет под хостел, офис, мед центр, компьютерный клуб.

— Электричество — 20 кВт, можно обсудить увеличение.

— 1я линия

— Отопление

— Охрана

— Интернет

— 4 Мокрые точки, 3 Санузла. Можно увеличить кол-во

— Запасной вход

— Доступ 24 часа

— Есть возможность повесить вывеску

— Кондиционер

— Вентиляция, вытяжка.

— Имеется разгрузочно-погрузочная зона

Коммунальные платежи оплачиваются отдельно

Возле объекта имеется бесплатная парковка

Высота потолка – 4 м